原标题:伦敦二手房源上新!£70万买一区,£87万买国王十字

2023年9月的伦敦二手房源合集来了。
除了我们固定发布的新房项目,不少买家表示想看高性价比的二手房和楼花房源,所以我们每个月都会固定整理发布一波。
*以下价格为房东委托标价,部分房东接受RMB,临近交房的项目只接受全款现金买家
*如需详情,可长按下方二维码加微信(ID: chelsea121216)了解楼花或二手房购买信息:
2023年9月16日上新
1
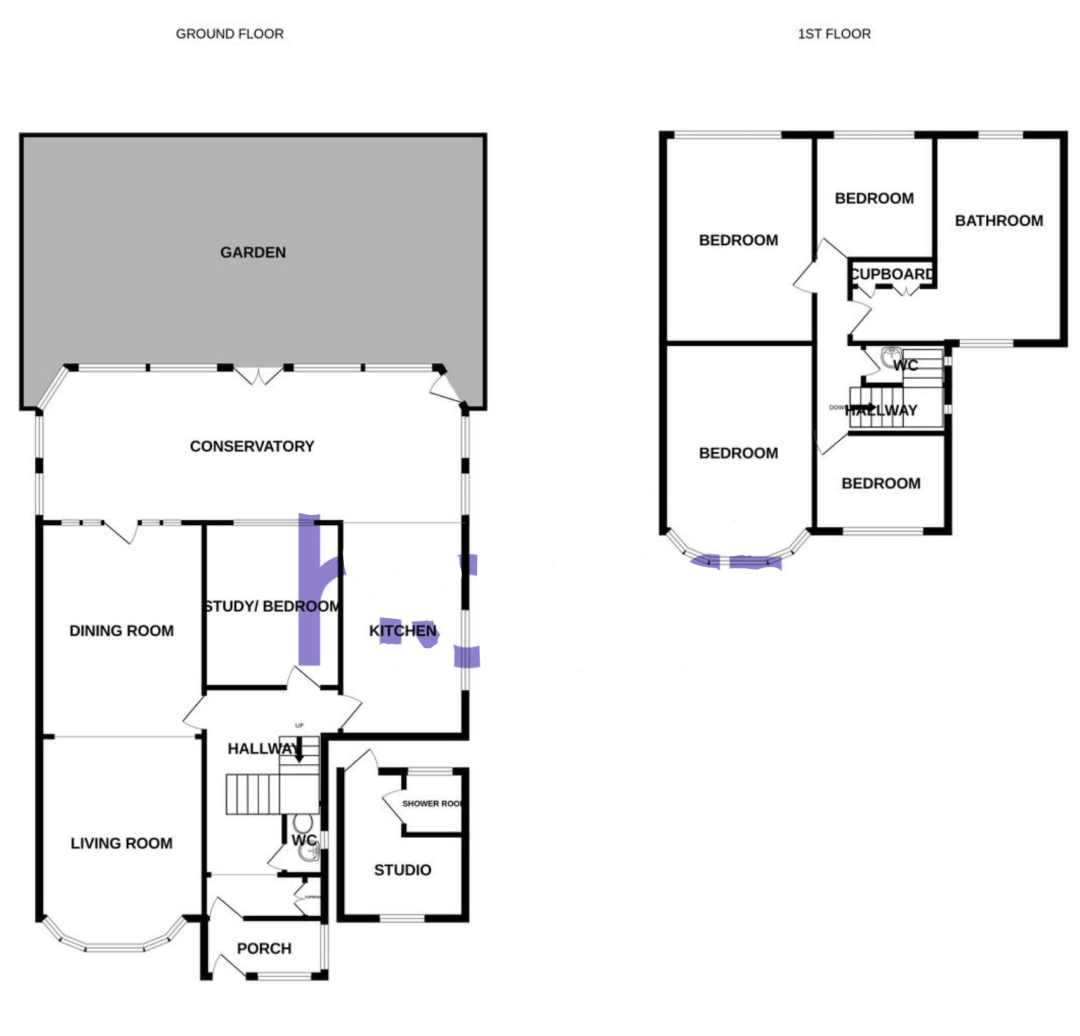
Prince Of Wales Drive
伦敦西南一区
一居室楼花
- 位置:伦敦西南一区巴特西,靠近巴特西公园
- 地址邮编:5 Palmer Road, London, SW11 4FX
- 一室一厅,面积:54.6平方米
- 交房时间:2023年11-2024年1月
- 项目亮点:位于西南一区,紧邻购物中心、地铁站、火车站,通勤半小时内可达伦敦绝大部分高校
👉 售价: 699,900英镑




2
Cadence
国王十字核心区
一居室楼花
走路15分钟可达UCL
- 位置:伦敦北一区中心,位处国王十字核心区,邮编N1C,最近的地铁站是国王十字站。
- 地址邮编:Cadence, 4 Lewis Cubitt Walk, Kings Cross, N1C
- 交房时间:2023年10-12月(可选交房时间)
- 房型:1室1厅,面积56平米
- 楼层:英国11楼
- 项目亮点:国王十字中央核心区;Google、Facebook、中央圣马丁(UAL)步行10分钟内,走路15分钟可达UCL
👉售价:87万英镑


3
Woodberry Down
伦敦北二区
两居室二手房
12分钟直通UCL
- 位置:伦敦北二区
- 地址邮编:Woodberry Down, Finsbury Park London N4
- 房型:两室一厅
- 面积:内部净面积80平方米+阳台面积42.4平方米
- 交房时间:现房次新二手房
- 项目亮点:位于皮卡迪利线站点Manor House旁, 周边配套成熟,小区带有游泳池,健身房和私人停车场。
- 租金:£2900/月,租售比4.6%
👉 售价:75万英镑


4
北伦敦独栋大别墅
Detached House
带超大花园和车位
- 位置:北伦敦独栋House,靠近Wembley Park地铁站
- 地址邮编:Wembley Park Dr, Wembley, HA9 8HE
- 房型:五房别墅Detached House
- 产权:永久产权(Freehold) 房东描述:
- 这套房子3楼已经拿下了➕loft资质、里面有三菱中央空调(在英国很少有)还有地暖等。
- 前花园可以停3-4 辆车。后花园近800平方。菜园是有机土。拿下来做酒店蛮好的。旁边还有一个小的studio 独立卫浴。出租在800-1000一个月。里面有墙暖(当时为我父亲建的、因为高龄不方便走楼梯)所以在后花园又盖了3间漂亮的瓦房。
- 花园里种了有苹果树、无花果、梨树、还有梅西树
👉 售价:140万英镑






5
Royal Victoria Dock
Oxygen Appartments
伦敦东三区
一室一厅二手房
- 位置:伦敦东三区皇家码头,靠近Royal Victoria轻轨站
- 地址邮编:The Oxygen, Royal Victoria Dock, 18 Western Gateway, London E16 1BL
- 房型:一室一厅
- 楼层:三楼
- 面积:65平方米
- 租金:1650英镑一个月,租售比:5.5%
👉售价:36万英镑

6
Jessica House
伦敦二区二手房
- 位置:伦敦西南二区Wandsworth Town站旁,走路10分钟可达;步行13分钟可以到East Putney站
- 地址邮编:191 Wandsworth High Street, London SW18 4LS
- 交房时间:现房二手房
- 房型:Studio,面积30平米
- 朝向:南/偏东一点
- 2楼/相当于国内3楼
- 产权:999年
- 每月租金£1,150
👉售价:32.5万英镑



7
White City Living
西伦敦
一居室二手房
- 位置:位于伦敦西二区,靠近White City地铁站,旁边就是西伦敦最大的商场Westfeild,比邻帝国理工白城校区
- 地址邮编:54 Wood Ln, Shepherd's Bush, London W12 7RQ
- 一室一厅一卫,8楼
- 室内面积 55.4平方米
- 交房时间:2022年
👉售价:80万英镑


8
White City Living
西伦敦
两居室二手房
- 位置:位于伦敦西二区,靠近White City地铁站,旁边就是西伦敦最大的商场Westfeild,比邻帝国理工白城校区
- 地址邮编:Water Garden, 54 Wood Ln, Shepherd's Bush, London W12 7RQ
- 两室一厅一卫
- 室内面积 87.4平方米 +阳台面积9.1平方米
- 交房时间:现房二手房
👉售价:120万英镑


9
Fulham Reach
西伦敦富勒姆
两居室二手房
- 位置:伦敦西二区,最近的地铁站是Hammersmith
- 地址邮编:Fulham Reach, Distillery Wharf, Parr's Way, Fulham, London, W6 9GD
- 两室一厅,朝东南, 俯瞰社区花园
- 楼层:6层
- 面积:81.1平方米+阳台3.8平方米
- 交房时间:刚刚交房的全新二手房
👉标价:138万英镑



1
北伦敦别墅Townhouse
2020年交房的次新二手房
自带花园和车位
- 位置:伦敦北四区,靠近Colindale地铁站
- 地址邮编:Colindale, NW9
- 房型:三房三卫的别墅Townhouse
- 面积:120平方米,赠送花园和车位
- 交房时间:2020年交房的次新二手房
- 项目亮点:北伦敦 Colindale地铁站旁,非常稀缺的别墅房源 ,搭乘地铁黑线Northern Line出发可快速到达国王十字Kings Cross
- 当前租金3000英镑每月,租售比4.5%
👉 售价:80万英镑



2
伦敦二区
两居室二手房
London City Island
- 位置:伦敦东二区,靠近金丝雀码头金融城
- 地址邮编:Orchard Pl, Poplar, London E16 1DF
- 房型:两室一厅
- 面积:80.4平方米
- 朝向:西
- 目前出租,租金为3207英镑每月,年租金回报率为5.7%
👉售价:68万英镑


3
London Dock
伦敦一区
一房二手房
靠近塔桥、中国大使馆新馆、老金融城
- 位置:伦敦一区,紧邻塔桥、伦敦金融城、 圣凯瑟琳码头、中国大使馆新馆。
- 地址邮编:Flat 112, 1 Emery Way, London E1W 2AS
- 户型:一室一厅,8楼
- 朝向:南
- 交房时间:现房
- 项目亮点:伦敦塔桥旁新地标,中国大使馆新馆旁,步行到达塔桥地铁站和Wapping高街,坐地铁可快速到达伦敦西区和金丝雀码头。
👉 售价:85万英镑








4
Kidbrooke Village
东南伦敦两室一厅
(次新二手房)
- 位置:伦敦东南三区
- 地址邮编:Kidbrook Village, London, SE3 9FW
- 两室一厅
- 朝向:南
- 楼层:9楼
- 内部净面积:71平方米 + 阳台面积:4.35平方米
- 交房时间:现房
- 租金:£1900/月
👉售价:56万英镑


5
伦敦一区楼花
City Road
临近UCL/KCL/LSE等多所伦敦大学
- 位置:伦敦一区 ,Old Street 地铁站旁
- 地址邮编:250 City Rd, London EC1V 2QQ
- 户型:曼哈顿(可改一室一厅)
- 室内净面积:44平方米
- 楼层:6楼
- 交房时间:2024年第一季度
- 项目亮点:伦敦一区、 全景落地窗 、 科技城核心、紧邻老金融城 、 可快速到达多所伦敦大学。
👉 售价:65万英镑


6
伦敦一区楼花
City Road
临近UCL/KCL/LSE等多所伦敦大学
- 位置:伦敦一区 ,Old Street 地铁站旁
- 地址邮编:250 City Rd, London EC1V 2QQ
- 户型:一室一厅, 面向花园采光好
- 面积67平方米,赠2个阳台工12平米
- 楼层:6楼
- 交房时间:2023年10-11月
👉 售价:88万英镑
7
曼城二手房
Northill一室一厅
- 位置:曼彻斯特,索尔福德码头,媒体城
- 地址邮编:Northill Apartments, Fortis Quay,Salford M50 3XN
- 交房时间:2022年6月
- 房型:一室一厅
- 面积48.03平米,东朝向,16楼(总高27层)
- 项目亮点:索尔福德码头附近,步行可至媒体城,方便到达索尔福德大学和曼城大学,落地景观窗,滨水而建可享受河畔风景。目前状况:出租中,租金950镑/月(不带家具出租)带家具租金约1050镑/月
👉售价:19万英镑

8
伦敦国王十字
次新现房二手房
仅三年房龄
一室一厅步行可达UCL/UAL
- 位置:伦敦北一区,国王十字地区,邮编N1C,最近的地铁站是国王十字站
- 地址邮编:Camley Street, N1C
- 交房时间:现房,三年前收房
- 房型:一室一厅
- 内部面积61.9平方米+阳台6.2平方米
- 产权:999年
- 朝向:西+南
- 项目亮点:国王十字区;比邻Google、Facebook、中央圣马丁(UAL)、伦敦大学学院(UCL)
👉 售价:75万镑







户型图

9
Beaufort Park
北伦敦二手房
- 位置:伦敦北四区,靠近Colindale地铁站
- 地址邮编:Beaufort Park, Colindale, NW9
- Studio,面积:30.2平方米(阳台6.6平米)
- 交房时间:刚交房的二手房
- 项目亮点:北伦敦高端社区,搭乘地铁黑线Northern Line出发,可快速到达国王十字Kings Cross
- 当前租金1500英镑每月,租售比5.8%
👉 售价:31万英镑




10
西伦敦诺丁山
两室一厅二手房
比邻海德公园和肯辛顿公园
- 位置:伦敦西一区,诺丁山富人区,Notting Hill Gate地铁站旁,走路可达肯辛顿公园和海德公园
- 地址邮编:Pembridge Crescent, London W11 3DS
- 房型:两室一厅
- 面积77.2平方米,带车位
- 产权:Share of Freehold
- 朝南朝西,3楼
- 房源亮点:西伦敦诺丁山稀缺房源,周边学区优秀,自住舒适,目前对外出租,每月租金2800英镑。
👉 售价:£1,019,000


户型图

11
西伦敦海德公园旁
三室一厅二手房
- 位置:伦敦西一区,海德公园以北,Paddington地铁站旁
- 地址邮编:Radnor Pl, Tyburnia, London W2 2TE
- 房型:三室一厅两卫
- 面积:99.2平方米
- 朝东,3楼
- 房东描述:海德公园旁,房型方正,安静,带电梯,一梯两户,公共地方品相好,现在租金每月3950镑。房子建于1980年代中期,为Georgian风格。地租每年100鎊。
👉 售价:£1,398,000(含所有家具家电)



户型图

12
West End Gate
伦敦西一区
一房二手房
- 位置:伦敦西一区,Edgware Road地铁站旁
- 地址邮编:1 Newcastle Pl, London W2 1EQ
- 一室一厅 ,面积:50 平方米
- 3楼,朝南
- 交房时间:现房二手房
👉售价:84万英镑





13
The Broadway
伦敦一区核心,邮编SW1
大本钟旁一房二手房
- 位置:伦敦一区威斯敏斯特区,St James's Park地铁站旁
- 地址邮编:The Broadway, Orchard Pl, London SW1H 0BF
- 一室一厅 ,面积:54 平方米
- 4楼,朝南
- 交房时间:刚刚交房的现房二手房
👉售价:159.5万英镑




14
West End Gate
伦敦西一区
两房二手房
- 位置:伦敦西一区,Edgware Road地铁站旁
- 地址邮编:1 Newcastle Pl, London W2 1EQ
- 两室一厅 ,内部净面积:81.48 平方米
- 9楼,朝东
- 交房时间:现房(2021年10月交房)
- 目前出租,每月租金5000英镑
👉售价:145万英镑




15
Verdean
西伦敦Studio楼花
两站直达邦德街
- 位置:伦敦西三区, Acton Main Line女王线地铁站旁, 地铁两站直达邦德街
- 地址邮编:1 Joseph Avenue, London W3 6NL
- 交房时间:2024年第二季度
- Studio,室内面积: 40.76平米+阳台面积9.33平米
- 朝南+东,20楼
- 项目亮点:户型方正,交通方便快捷,直达新老金 融城
👉 售价:£40万英镑
户型图👇🏻

16
Snow Hill Wharf
伯明翰
二居室二手房
- 位置:伯明翰CBD,Snow Hill Station旁边
- 地址邮编:Apartment 401, 62 shadwell street, Birmingham, B4 6LJ
- 户型:两室一厅,面积 70.2平米(包括5.6平米阳台)
- 朝向:西南,First Floor,带双车位
- 刚交房的次新二手房(交房时间:2022年1月)
- 项目亮点:距离Snow Hill Station步行300米,未来会建成HS2车站,约700米距离 项目旁边就是伯明翰的金融区,已有KPMG (毕马威)、PWC(普华永道)、Barclays (巴克莱银行) 等500多家大中小企业入驻。可快速到达阿斯顿大学、伯明翰城市大学和伯明翰大学学院。
👉 售价:40万英镑


17
Ability Place
伦敦金丝雀码头
二手房(两居室)
- 位置:位于伦敦金丝雀码头,步行可达CBD核心金融区,阳台俯瞰Millwall Inner Dock (泰晤士河景)。
- 地址邮编:Ability Place,37 Millharbour, Canary Wharf, London, E14 9HB
- 房型:两室一厅两卫,地面一层封闭式地下停车位
- 室内面积:75平方米
- 现房二手房,购于2014年
- 房东描述:地理位置优越,环境优美,2个卧室和客厅全线无敌dock泰晤士河景,生活安静便利。
- 大楼24小时物业管理,房内配有可视电话,非常安全。只对业主开放的健身房。大楼对过是Tesco超市,临近天天中国超市。
- 目前正在出租,三位UCL的老师已租住4年, 月租金2500英镑,租金回报率4%
👉 售价:70.5万英镑




18
Ebury Place, SW1
伦敦一区富人区Pimlico
一居室二手房
靠近白金汉宫和泰晤士河
- 位置:位于伦敦一区SW1邮编的富人区Pimlico,比邻白金汉宫,步行可达Victoria车站,走路可达泰晤士河畔
- 地址邮编:1b Sutherland St, Pimlico, London SW1V 4BF
- 房型:一室一厅
- 面积:53.85平米+阳台4.75平米
- 交房时间:现房次新房 ,2018年购入
- 周边大学:地铁几站就到UCL/ KCL/LSE等大学,走路可达UAL伦艺切尔西艺术与设计学院。
👉售价:90万英镑





19
The Dumont
伦敦一区泰晤士河畔楼王
一居室二手房
- 位置:伦敦一区,泰晤士河畔水景房,步行可到达Vauxhall地铁站及火车站
- 地址邮编:27 Albert Embankment, SE1 7AP
- 房型:一室一厅
- 室内面积60平方米,附带一个阳台面积7平方米
- 7楼
- 交房时间:现房,2020年交房
- 周边大学:步行可达KCL Waterloo校区,地铁5站到UCL
- 项目亮点:伦敦网红公寓,租盘一房难求,客厅与睡房也拥有河畔景观,可看到威斯敏斯特,客厅另一边能看到碎片大厦。
- 项目室内装修 :客厅走廊厨房铺设木地板,卧室全部改用木地板,方便清洁。走廊配有单独储物空间及一个装有洗衣机烘乾机一体的多功能设备间。厨房配有一体式家用厨具包括Miele炉灶、烤箱微波炉、洗碗机、红酒柜及冰箱。
- 项目设施:二十四小时礼宾服务。豪华五星级会所设施包括健身房、游泳池、水疗中心、保龄球场、桌球游戏间、私人影院、天际酒吧及空中花园。
- 房东描述 :项目是2020年购入交房,因为孩子大学毕业回国因此出售。项目交通方便,治安超好,24小时前台接收快递,楼下就有Tesco express超市,牛排馆、西餐厅,步行可达Shop & Go Vauxhall中国超市。孩子回国留下用了两年不到的傢电,包括上网路由器、电饭煲,水壶、咖啡机、速蒸锅、炒菜机等。客厅有双人沙发床,睡房有双人床可分开成兩张单人床使用,还有书桌、升降电竞椅、书架、餐具、吸尘器、投影支架幕布、桌椅茶几及全新自行车,拎包入住。
👉售价:95.4万英镑









视频
20
Verdean
西伦敦一居室楼花
2站直达邦德街
- 位置:西伦敦, Acton Main Line女王线地铁站旁, 地铁2站直达达邦德街
- 地址邮编:1 Joseph Avenue, London W3 6NL
- 交房时间:2024年第二季度
- 一室一厅,室内面积: 50平米+阳台面积5平米
- 朝南,17楼
- 项目亮点:户型方正,交通方便快捷,直达新老金融城
👉 售价:£50.4万英镑

21
Local Crescent
一室一厅
曼城二手房
- 位置:曼彻斯特高端社区,位于索尔福德大学门口,走路可达曼彻斯特市政厅,公交可达曼彻斯特大学,曼彻斯特城市大学
- 地址邮编:4 Hulme St, Salford M5 4ZE
- 交房时间:2021年
- 房型:一室一厅,面积48平米
- 项目亮点:带家具家电出售,目前租金1200镑一个月不包bill,年租金回报率6%
👉售价:24万英镑

22
Principle Tower
伦敦一区金融城楼王
两居室二手房
- 位置:伦敦一区金融城, 当地最高端住宅楼王 , 旁边就是Liverpool Street女王线车站。
- 地址邮编:Principal Place, 115 Worship Street, London, EC2A
- 房型:两室一厅
- 面积:77.8平米,6楼
- 交房时间:现房次新房 ,2019年建成
- 周边大学:地铁可快速到达UCL/ KCL/LSE等大学。
- 房子一直自住,私信索取更多照片
👉售价:125万英镑




视频
23
Rathbone Place
伦敦核心一区二手房
邮编W1
走路可达UCL
- 位置:伦敦西区(West End)一区黄金地段,门口就是 Tottenham Court Road地铁站 。
- 区位:楼下就是牛津街;步行可达中国城、UCL、LSE。
- 地址邮编:37 Rathbone Place,W1T 1JN
- 房型:一室一厅一卫,有共享地下停车场
- 室内面积54.5平方米,附带5平米阳台
- 交房时间:现房,2018年交房
- 房子一直由房东自住,如出租的话相同房型一个月租金在5000英镑左右
- 房东描述: 公寓配置: 高品位精装。Miele厨房设备,中央空调,地暖。 家具由专业资深设计师工作室根据房型量身设计定制 , 储物空间充足,规划灵巧精妙,一室可当两室半, 单户合租/住都适合, 拎包入住。 东北偏东朝向,采光充足,不用空调的情况下也冬暖夏凉。 双层玻璃,隔音效果绝佳。
- 公寓楼配置及设施服务: 高档豪华7层公寓楼。24小时双人前台。 小区广场晚上关门入内需门卡,有门卫保障安全。 私人影院(带朋友来看电影,世界杯环境绝佳)。 酒窖。 公用办公会议区域,后花园,公用小厨房。 休闲区有游泳池,健身房,桑拿,蒸汽房。
👉 售价:151.8万英镑






24
Royal Exchange Kingston
伦敦金斯顿一居室楼花
- 位置:伦敦金斯顿,local中产聚居区
- 地址邮编:5 Brook street,Kingston upon THams, KT1 2FQ
- 交房时间:2023年Q3
- 房型:一室一厅两卫(可以改成两居室)
- 面积:61.8平方米,送5.6平方米阳台,东朝向
- 楼层:8楼,位于小区中央
- 项目亮点:区域环境优美,生活配套方便,学区好,交通便捷,火车半小时到市中心
👉售价:57万英镑


25
Prince Of Wales Drive
伦敦西南一区
两居室二手房
- 位置:伦敦西南一区巴特西,靠近巴特西公园
- 地址邮编:Salisbury House, 5 Palmer Road, London, SW11 4FX
- 两室一厅,面积:80平方米
- 刚刚交房,交房时间为2023年
- 项目亮点:位于西南一区,紧邻购物中心、地铁站、火车站,通勤半小时内可达伦敦绝大部分高校
- 3D看房链接:https://my.matterport.com/show/?m=LvFcVq2qbbM
👉 标价135万英镑




26
White City Living
伦敦西二区
二手房
- 位置:位于伦敦西二区,靠近White City地铁站,旁边就是西伦敦最大的商场Westfeild,比邻帝国理工白城校区
- 地址邮编:54 Wood Ln, Shepherd's Bush, London W12 7RQ
- Studio(可改一房)
- 室内面积 45.5平方米 +阳台面积 4.7平方米
- 朝向:西南
- 交房时间:现房二手房(2021年1月交房)
👉售价:72.5万英镑




视频
27
One West Point
伦敦西二区
两室一厅
(次新二手房)
- 位置:伦敦西二区 ,North Acton红线地铁站旁
- 地址邮编:One West Point. Portal Way, London, W3 6RT
- 两室一厅,室内73.1平方米+阳台7平方米
- 4楼,朝南
- 交房时间:现房二手房,2022年10月交房
- 小区隔壁就是帝国理工的学生公寓,乘坐地铁可快速到达帝国理工白城校区
- 租金:£2800/月,租售比:4.9%
👉 售价:68万英镑





28
东伦敦 Stratford
靠近Westfield
一房二手房
- 位置:伦敦奥运新城Stratford ,步行可达Upton Park地铁站
- 地址邮编:E13 9GG
- 一室一厅,面积:60平方米
- 楼层 :7楼
- 交房时间:现房(2019年购入)
👉 售价:36万英镑(含家具家电)






29
Woodberry Down
伦敦北二区
一居室二手房
地铁6站直通UCL
- 位置:伦敦北二区
- 地址邮编:Woodberry Down, Finsbury Park London N4
- 房型:一室一厅
- 面积:48.9平方米
- 交房时间:现房(2018年9月5日交房)
- 项目亮点:位于皮卡迪利线站点Manor House旁, 周边配套成熟,小区带有游泳池,健身房和私人停车场。
- 租金:£2300/月
👉 售价:56万镑



视频
30
伦敦东二区
Greenwich Peninsula
Studio二手房
- 位置:伦敦二区,North Greenwich灰线地铁站旁
- 地址邮编:47 Pilot Walk, London, SE10 0NW
- Studio,室内39.3平方米+阳台6.3平方米
- 交房时间:现房
- 租金:£1850/月,租售比:4.9%/年
👉 售价:45英镑



31
Kidbrooke Village
东南伦敦
两室一厅
(次新二手房)
- 位置:伦敦东南三区
- 地址邮编:805 Cobham house, Kidbrook Village, London, SE3 9FW
- 两室一厅 ,东北朝向,8层
- 面积:62平方米
- 交房时间:现房
- 租金:£1550/月
👉售价:52万英镑



32
伦敦河景House
Canada Water
- 位置:伦敦东二区Canada Water,面朝河景和小船坞
- 地址邮编:Rope Street, SE16
- 三室一厅 ,带车库,面积:134.2平方米
- 交房时间:现房
- 产权:989年(相当于share of freehold)
- 建筑年代:1995年左右新建
👉售价:100万英镑








33
Canary Wharf
金丝雀码头
伦敦二居室公寓
- 位置:伦敦东二区,金丝雀码头金融城旁
- 地址:Isle of Dogs,临近Mudchute轻轨站
- 两室两卫一厅 ,面积:66. 9平方米
- 交房时间:现房
- 产权:79年
- 建造时间:2000年
- 物业费:£140/月
- 地租:£200/月
👉售价:47.5万英镑






34
HKR Hoxton
北伦敦两居室现房
- 位置:伦敦北二区,邻近伦敦金融城
- 地址邮编:211–227 Hackney Road, London E2 8NA
- 两室一厅 ,面积:67.8平方米
- 交房时间:现房
- 租金:£3033/月
👉售价:87.5万英镑

35
Harbour Central
伦敦金丝雀码头
次新二手房
- 位置:伦敦东二区,金丝雀码头中心位置
- 地址邮编:Lighterman's Rd, Canary Wharf, London E14 9EZ
- 一室一厅,58平方米
- 33楼
- 项目亮点:金丝雀码头中心位置,通勤方便,项目高楼层,城市景观视野清晰
- 带租约,租金£1850一个月
👉售价:69万英镑

36
拉夫堡三居室
现房House
- 位置:英国拉夫堡南部,莱斯特北部
- 地址邮编:Wilson Drive, Loughborough, LE11 2RW
- 三室一厅 ,面积:87.6平方米
- 交房时间:现房
- 预估租金:1100英镑一个月
👉售价:28万英镑







37
伦敦北三区
带超大花园的三居别墅
- 位置:伦敦北三区,最新地铁站为Wood Green和Turnpike Lane
- 地址邮编:Gospatrick Road, London N17 7EE
- 产权:永久产权(Freehold)
- 面积:130.6平米
- 房型:半独栋双层别墅,三居三卫二厅,带超大花园
👉售价:79.5万英镑










房东描述


38
Woodberry Down
伦敦北二区
一居室楼花
地铁6站直通UCL
- 位置:伦敦北二区
- 地址邮编:Woodberry Down, Finsbury Park London N4
- 房型:一室一厅
- 面积:室内52平方米+阳台5平方米
- 交房时间:2024年第三季度/第四季度
- 项目亮点:位于 皮卡迪利线站点边, 周边配套成熟,小区带有游泳池,健身房和私人停车场。
👉 售价:57万镑

39
One Blackfriars
伦敦一区地标楼王
一居室二手房
- 位置:伦敦地标楼王,一区核心地段,泰晤士河畔,对面就是老金融城。
- 地址邮编:1-16 Blackfriars Rd, London SE1 9GD
- 房型:一室一厅
- 面积:50.8平+5平米阳台
- 东南朝向,四楼
- 带地暖,大落地窗,家电齐全
- 交房时间:现房,一年前刚交房
- 项目亮点:24小时前台安保,带健身房、室內恒温游泳池、温泉桑拿、电影院、模拟高尔夫球场、紅酒室、32楼全层行政酒廊。
👉售价:105万英镑


40
Royal Exchange Kingston
二居室楼花
- 位置:伦敦金斯顿,local中产聚居区
- 地址邮编:4 Ashdown Road,Kingston upon THams, KT1 2FQ
- 交房时间:2023年Q3
- 房型:两室一厅,面积73.7平方米,送7.8平方米阳台,西朝向,四楼(国内五楼)含一车位
- 项目亮点:1. 金士顿核心地带新盘,出门就是购物中心,伯克利品质保证。2. 伦敦传统学区,牛剑升学率高。3. 金士顿大学步行7min,联合利华新总部在旁。4. Crossrail 2 站点沿线,升值潜力大。
👉售价:68.5万英镑

41
Aspen
伦敦金丝雀码头
一居室楼花
- 位置:伦敦东二区,金丝雀码头中心位置
- 地址邮编:50 Marsh Wall, London E14 9TP
- 一室一厅,55平方米
- 10楼
- 交房时间:2023年第四季度
👉售价:62.5万英镑

42
Goodman's Field
伦敦老金融城
Studio二手房
- 位置: 伦敦⼀区金融城附近
- 地址邮编:perilla house,17 stable walk,London E1 8ZG
- 房型:Studio
- 室内面积:44平方米
- 交房时间:现房二手房 项目亮点:
- 交通便捷: 门口就是Aldgate East地铁站,地铁可达中国城 westfield商 圈,楼下有超市,餐馆和中超,步行可达泰晤⼠河,伦敦塔桥等伦敦地 标建筑河,伦敦塔桥等伦敦地标建筑
- 设施齐全:小区配有私人影院、健身房、游泳池、桑拿房、健身房、24小时礼宾服务、托儿所、会议室
👉售价:75万英镑

40
Fulham Reach
西伦敦富勒姆
一居室二手房
- 位置:伦敦西二区,最近的地铁站是Hammersmith
- 地址邮编:Fulham Reach, Distillery Wharf, Parr's Way, Fulham, London, W6 9GD
- 一室一厅,朝东南, 俯瞰社区花园
- 4层(国内5层)
- 面积:49.6平方米(带两个阳台)
- 交房时间:2023年第二季度交房
👉标价:79万英镑

43
White City Living
西伦敦
两居室二手房
- 位置:位于伦敦西二区,靠近White City地铁站,旁边就是西伦敦最大的商场Westfeild,比邻帝国理工白城校区
- 地址邮编:Water Garden, 54 Wood Ln, Shepherd's Bush, London W12 7RQ
- 两室一厅一卫 ,室内面积 74平方米 +阳台面积 10平方米
- 朝向:东南
- 交房时间:现房二手房(2019年10月交房)
- 目前在租, 租金3800英镑一个月 ,租售比3.8%
房东描述:
- 交通便利 (Wood Lane和 White City两个地铁站)
- 伯克利明星楼盘,地段,配套,增值潜力均具备
- 房屋出租供不应求,此房自交房起一个月内便租出,租金为880磅/周
👉售价:125万 英镑


44
Keybridge
伦敦一区两居室
刚交房的次新二手房
- 位置:伦敦一区Vauxhall
- 地址邮编:80 S Lambeth Rd, Oval, London SW8 1RG
- 一室一厅,朝西,4楼
- 面积:室内51.3平方米+阳台5平米
- 交房时间:已交房
- 目前在租, 租金2080英镑每月
👉标价:68万英镑


45
Beaufort Park
北伦敦二手房
- 位置:伦敦北四区,靠近Colindale地铁站
- 地址邮编:Fairbank House, Beaufort Square, Beaufort Park, Colindale, NW9
- 一室一厅,2层,51.2平方米
- 交房时间:刚刚交房的二手新房
- 项目亮点:北伦敦高端社区,搭乘地铁黑线Northern Line出发,可快速到达国王十字Kings Cross
👉 售价:40万英镑




46
8 Casson Square
二手房
次新Studio
- 位置:伦敦一区,伦敦眼、大本钟附近
- 地址邮编:1 Southbank Place, London, SE1
- Studio,面积:43.8平方米
- 交房时间:现房
👉 售价:86万英镑


47
伦敦Hampstead
二手房三室两厅
- 位置:伦敦西北二区富人区 Hampstead
- 地址邮编:Compayne Gardens, South Hampstead, London NW6 3DB
- 房型:三室两厅
- 带私人停车位、车库和花园
- 面积:内部113平方米+外部11平米
- 产权: 永久产权(Share of Freehold)
- 南北通透,全新装修
- 房东评价:地处 South Hampstead Conservation Area,目前在租,租客是律师和金融业高管,月租金3000英镑。
👉 售价:110万镑




48
伦敦Hampstead
二手房两室一厅
- 位置:伦敦西北二区 West Hampstead ,最近的地铁站是Kilburn和 West Hampstead
- 地址邮编:Gondar Mansions, 29 Mill Lane, West Hampstead, London NW6 1NU
- 房型 :两室一厅,52.5平方米
- 产权:124年
- 房东评价: 离地铁站和日常生活便利很近,超级好租,上次出租2个星期左右就租出去了,租给一个公司董事, 月租1600英镑(不包任何水、电、煤或政府杂费)。
👉 售价:55万镑



49
Kidbrook Village
伦敦别墅
(次新二手房)
- 位置:伦敦东南三区,Kidbrook站旁
- 地址邮编:6 Handley Drive, London, SE3 9BU
- 交房时间:2016年
- 面积:122平米
- 房型:三房联排别墅,一共三层,带车位和顶层大露台
- 项目亮点:稀缺别墅项目,当年开盘一抢而空,目前房源非常少
- 目前对外出租, 租金一个月2550英镑
👉售价:85万英镑


50
伦敦一区科技城
The Atlas Building
一居室二手房
- 位置:伦敦一区EC1 ,Old Street地铁站旁
- 地址邮编:145 City Road, London, EC1V 1AA
- 户型:一 居室, 一室一厅一卫,半露天阳台,8楼
- 总面积59.22平米,室内面积54.22平米,阳台面积5平米
- 交房时间:现房二手房,去年刚刚交房
- 带租客,租金每月2800英镑, 租售比4.2%
- 项目亮点:伦敦科技城,距离Northern Line黑线 Old Street地铁站仅不到200米,与金融城一街之隔。
👉 售价:79.9万英镑

*以上价格为房东委托标价,部分房东接受RMB,临近交房的项目只接受全款现金买家
*如需详情,可长按下方二维码加微信(ID: chelsea121216)了解楼花或二手房购买信息: