踩盘人的快乐很简单。
台风刚走,新政刚出,再遇上万科在广州首开的全新盘。
等了几个月,终于等到万科·瑧山府露出庐山真面目。
当然,我来的目的不止是看看市场情况那么简单,主要是我听说万科搞了个全新的大平层。
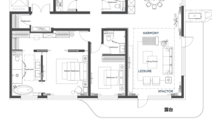
193平超大平层,南向7开间的布局。
嘶……这活,整挺牛啊

真的惊喜!
为什么我会这么惊讶?
近年一线城市大平层以边厅+L型采光设计为主,主套和客厅的采光与朝向相对长辈房、客卧好一些,相同面积的产品很少做多开间设计。
但万科·瑧山府多开间设计,缩短了整个空间的进深,尽可能地撑开了采光面,也增加空间的通透感,可以望白云山。
同时,我也扒来了一些案例,大家可以对比一下。

△万科瑧山府 约193平,7开间

△北京中海甲叁號院 约200平户型,4开间

△缦云上海 约199平,4开间
所有卧室的朝向一致,进一步平衡了各个空间的舒适度,譬如你不用担心自己住得爽,而次卧的孩子却要天天吹北风或者被西晒。
除此之外,项目还有其他亮点,设置了入户花园以及玄关,玄关隔壁配置了独立的储物间。
长辈房和主套分别在客厅两侧,互不打扰,主套配置了步入式衣帽间,双盥洗台盆+浴缸,而且主卫和卧室都有约270的瞰景面,同样可以看白云山。

除此之外项目还有约115平以及约138平的改善户型
其中,约115平户型数量最多,LDKB布局,入户采用了S墙设计,其将原本笔直的墙体,变成深浅不一的S型,方便柜体、冰箱等嵌入,整体更简洁。

约138平,带宽敞的边厅,同样采用S墙的设计,增加储物收纳,厨房带岛台。主套有独立的卫浴空间和L型衣帽间。

以上三个户型的分布是这样的——
约193平为东南朝向,数量最少,只有5套的,约138平为西南朝向,约115平有东南以及西南朝向,占比最多。
首开1栋有20层,货量只有约65套,不算多。

区位和配套方面,项目位于白云新城核心区。

其与白云山直线距离只有约500米,景色不错,步行到白云山南二门约1.7公里(资料来源:百度地图)。

从项目地铁和开车通勤到珠江新城的时间大概只需要这么多,交通也比较方便。(来源:百度地图 截止时间为2023年9月3日)


附近也有凯德云尚广场和五号停机坪等商业配套。
在核心区,配套也不用等,实现通勤以及逛街自由,比较吸引人的。
最后,我还在现场观察了约2小时,期间也跟部分购房者聊了一会。
其中一位心仪约190平的购房者表示,项目拥有山景资源,且距离珠江新城较近,甚至还兼顾了“奶茶”自由,较符合自己的需求,加上最近市场利好不少,目前已经准备出手。
现场还有一部分购房者来自附近的体育花园、隆康花园,大部分都有置换的打算。
价格预测
项目目前暂时没有具体价格,那么我斗胆来推测一下。
约193平应该是全盘均价比较高的王牌户型,其次是约138平中高层户型,115平视乎楼层而定。
项目属于广信资产包的一员,产权<70年,但因为区位好、配套丰富,户型有所提升,价格肯定不会太低。
预计部分户型会比对面的云山壹品成交均价6.5万/平(来源:中指院,截止日期2023年9月3日)还要高。
大平层价格可以参考在售的粤海·云港城的价格,2023年1-8月该盘成交单价约8.8-9.4万/平(来源:中指院,截止日期2023年9月3日)。
最后,项目预计在10月份开盘,你认为它值得期待吗?