万科·东庐

万科东庐的售楼处已经开放,样板间也已经做好,只是未对外开放,预计是本周六开放,做了65/73/89/95四个样板间,120平的因为只有36套,所以就没做。
明天就开放样板间了,所以今天对这个楼盘做一个分析,还是老规矩,按顺序捋,内容在最下方!
区位

项目位于通州物资学院的西侧,距离物资学院地铁直线距离700米,实际的步行距离则是1公里左右。

南侧的6007地块就是前俩月开盘的国誉朝华,指导价同样也是6.5万/平,但实际成交均价在5.8万/平,并且从目前的市场成交来看,万科的后期均价应该也不会太高,毕竟万科的地块离地铁要更远,预计是5.8-6万左右!
开发商

万科的经验和实力就不多说了,在北京有太多的作品能证明,在当下这个经济市场不太好的情况下,开发商的财务才是最重要的。

从万科2023年一季报来看,万科的风险还不高,毕竟是第一家喊出“活下去”的房企,眼光很长远,其风险也远远要低于恒大碧桂园。

万科的物业口碑还是很好的,这并不是看数据看表格,我是实打实的问过很多万科的业主,给的评价都很好。

这主要也是跟万科的产品风格有关,万科有不少中高端的小区,所以物业就很好,而物业好,品质好,就能在很大程度上决定未来存量房价格保值。
产品

项目规划设计图

小区一共规划了13栋住宅楼,层高3米,总高4-11层,整体限高36米,楼间距30-47米左右;而托幼用地整体限高16米,规划了12班的幼儿园。

在售户型面积段为65-73-89-95-120平,主力户型为89/95平。

户型



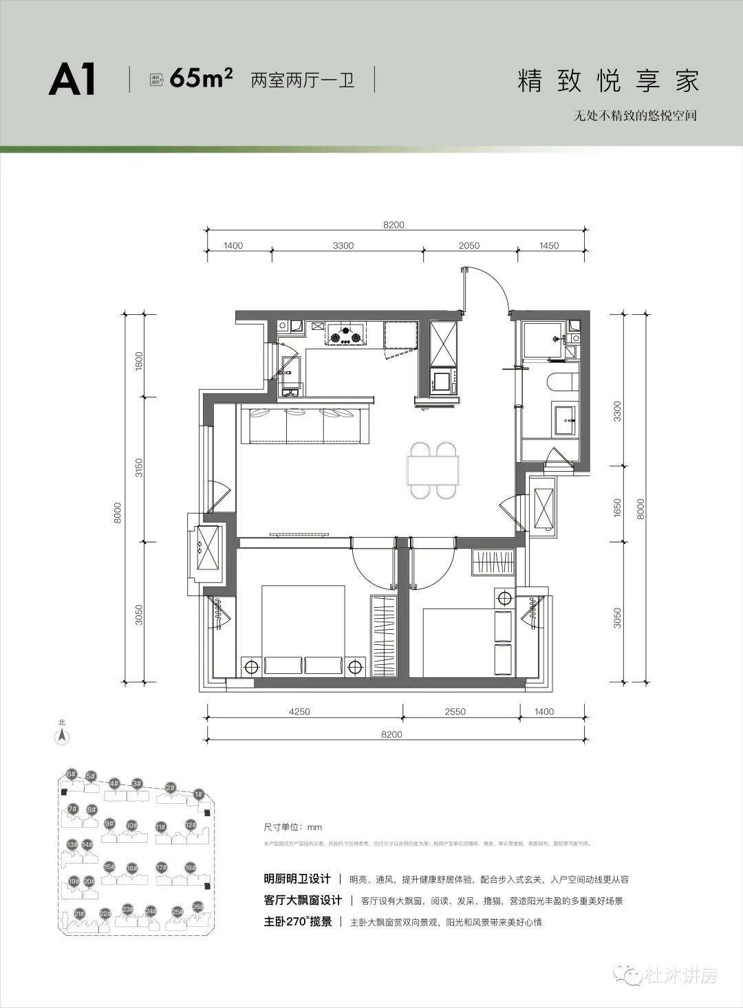
65平南向两居室,房源不多,但是有普宅,也就是首付130万左右即可拿下。

73平的两居室,南北通透,南向双飘窗,LDK一体化,整体的功能性比较强。
此户型分布在7/13/19/21/22/24/25/26号楼,房源比较充足,选到好楼层的机会还是比较大的。

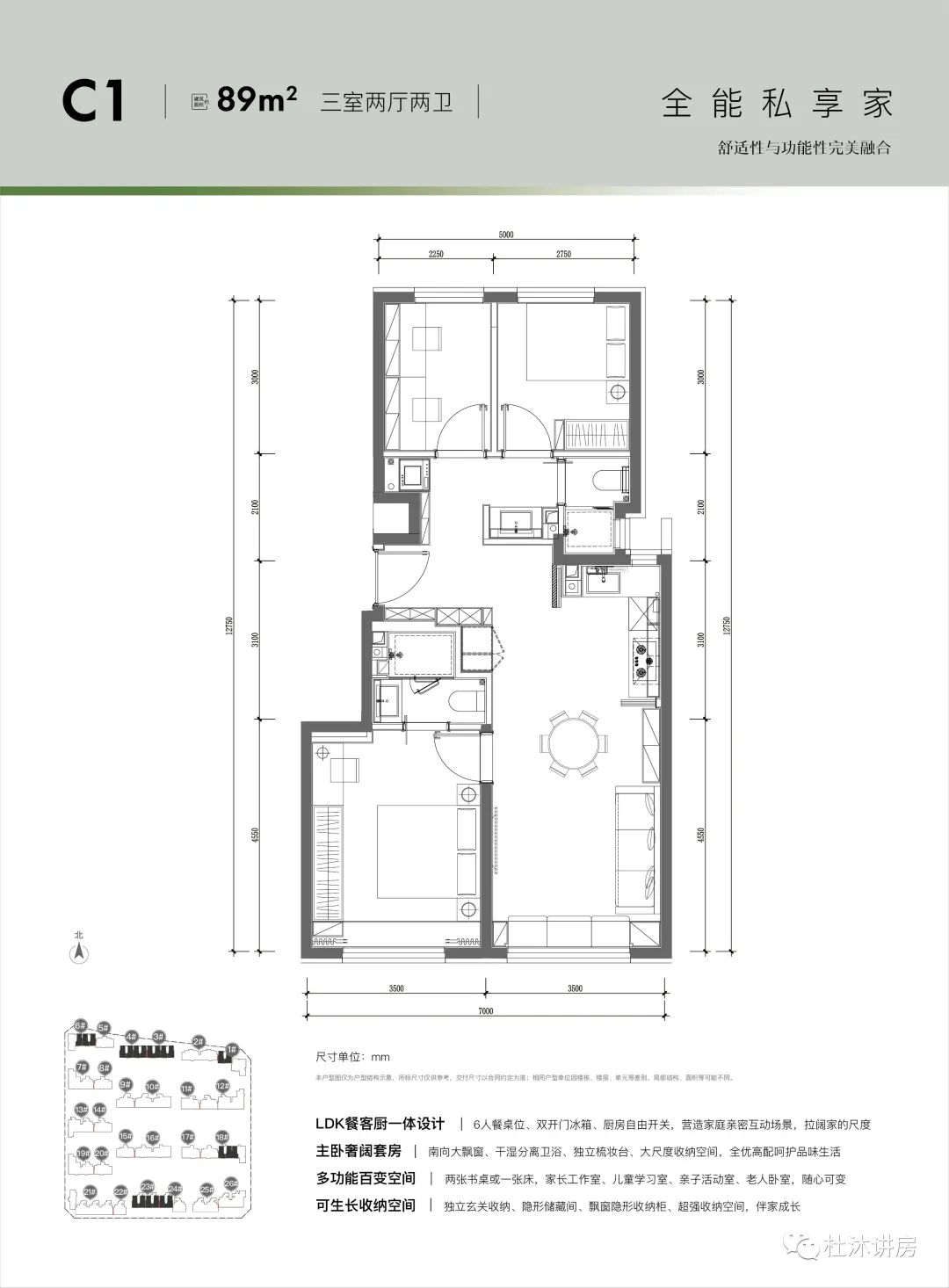
89平的三居双卫,全是中户,没有拐角大飘窗,还不如当年台湖的东望,也不如南侧国誉朝华88平的户型。这个户型给我的感觉比较一般,中规中矩,不是太推荐,当然也要看最终的价格怎么样。
此户型分布在1/3/4/6/18/23号楼,房源也比较充足。


95平的三居双卫,分中户和边户,这个户型还是可以的,三面朝南,全明格局,LDK一体化设计。而且此户型把南向两卧室的入户门放到了南侧,在家里有客人的时候也能保护不少隐私。
此户型分布在2//5/8/9/10/11/12/14/15/16/17/20号楼。

120平的四居双卫,全明格局,四叶草设计。这个户型我只能说中规中矩,因为120这个面积,别的项目客厅面宽基本都做到4米以上了。还有厨房旁边的这个西厨的设计,我个人觉得有点画蛇添足了,不过倒也不影响,后期应该是可以改动的。
此户型只有边户,分布在10/16号楼的东边户(总高7层)、11/17号楼的西边户(总高11层),一共也就三十多套房。
样板间实拍






分析:

这次的万科很能送,好像也知道自己有弊端,所以主打的就是为刚需服务,对刚需很友好。
比如70平以上的基本快成整装了,比如柜子、扫拖机器人、洗衣机、冰箱、还有厨具基本全齐,像烘烤机洗碗机之类的都有,而且中央空调也是标配,这样能给屋里节省更多的空间!基本上也就是除了床、沙发、餐桌、电视背景墙这类比较偏个人喜好的东西没有赠送,其他都有了!
从位置上来说,其实万科地块比较一般,别听销售说什么用了4年多才找到一块满意的地,还有什么时隔4年再次拿地足以证明地块有价值,净瞎扯。万科绝对是有眼光的房企,这没得说,人家第一个收缩业务,喊出“活下去”,所以万科的财务状况还算健康,可以说这4年是养精蓄锐,但要吹到地块上那可太没良心了!
因为离地铁远,而且若自驾出行,地块往南上朝阳北路要经过国誉朝华,这段路会很容易堵车。所以这也是为什么把售楼处放到常营的陆港城,就像国誉朝华的售楼处在褡裢坡,因为售楼处放工地附近更不好卖。
万科的地块本身是没有70/90限制的,本应该比国誉朝华更有优势,但最终还是选择了走刚需的定位,那后期的去化速度也肯定会受影响,毕竟国誉朝华已经吸收了一大波客户了!
从产品角度来看,万科东庐是有优势的,装修品质要高,赠送的也多,而且户型面积段相对比较纯粹不杂乱。而国誉朝华的小户型太多,太杂乱,这也说明国誉朝华比万科东庐更偏刚需,在后期进入存量房市场的时候,万科在这方面会有些优势,而且万科的物业口碑很好,同样都是刚需盘的情况下,物业就很重要,能决定一部分未来的存量房价值。
至于飞机航道,周边垃圾场等不利因素,这个我也说过很多次了,你实际去工地呆一会儿,周边走访一下,溜达溜达,感受一下这边的生活氛围,能接受就买,接受不了就看别的。
总体来说,其实万科这次投入的力度还是比较大的,因为甲方也深知自己的弊端,所以赠送的很多,也很“热情”,让刚需多感受些温暖,而且毕竟是4年后万科在京的第一个新盘,高层也比较重视,想开门红,所以我建议刚需朋友想买就尽早看,确定就别犹豫,开盘的优惠力度一定是最大的。